Info Terbaru 2022

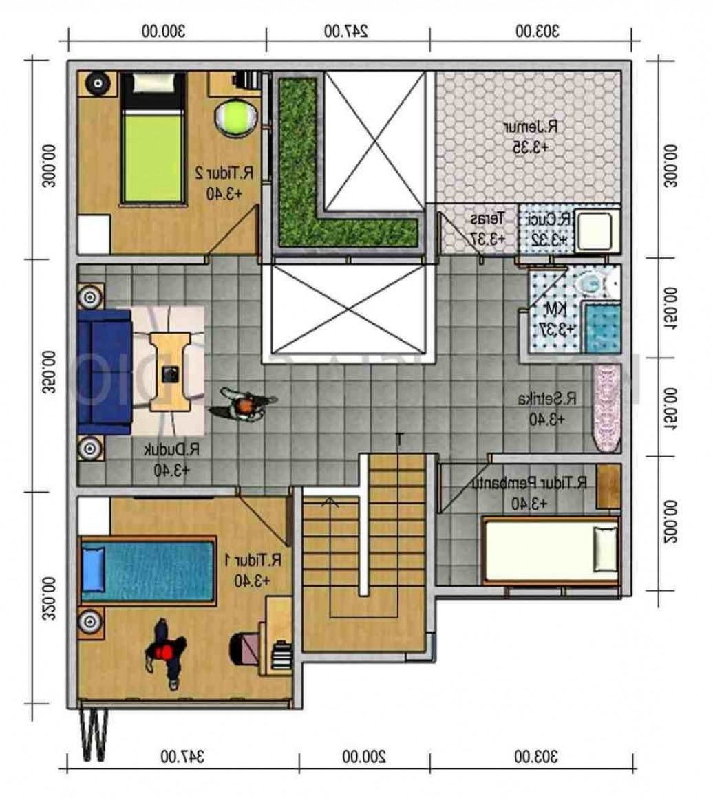
Desain Rumah Kamar 3 Kamar Mandi 2

Desain Rumah Kamar 3 Kamar Mandi 2
Desain Rumah Kamar 3 Kamar Mandi 2

Meski menganut konsep minimalis rumah type 70 sebenarnya sudah termasuk kategori rumah mewah dan pemiliknya memiliki kebebasan untuk menata ruangan sedemikian rupa dan membedakan antara area publik dan area privat. 15 denah rumah 3 kamar tidur 2 kamar mandi minimalis modern.

20 Denah Rumah Minimalis 3 Kamar Tidur Rumahku Unik

Desain rumah kamar 3 kamar mandi 2ialah salah satu gambar dari pembahasan artikel 30 gambar desain rumah 3 kamar minimalis modern 2019kemudian artikel desain rumah kamar 3 kamar mandi 2 admin bagikan secara gratis di website kami gambar desain rumah minimalis ini.

Desain rumah kamar 3 kamar mandi 2. Kami telah merangkum koleksi 25 desain rumah 3 kamar minimalis modern 2019 yang mampu kalian jadikan inspirasi untuk membuat desain rumah seperti desain rumah kamar 3 kamar mandi 2 dan kalian bisa mencoba sendiri di rumah. 15 denah rumah 3 kamar tidur 2 kamar mandi 1 lantai 2 lantai denah rumah merupakan salah satu elemen pertama yang perlu disiapkan sebelum membangun sebuah hunian. Dengan adanya denah maka rencana pembangunan rumah menjadi lebih mudah.

Tolong denah dan design rumah sekalian rab. Denah rumah minimalis 3 kamar tidur 2 kamar mandi. Susunan ruangan yang memiliki jumlah 3 kamar memang cocok untuk keluarga.

Berikut ini adalah rumah dengan 2 kamar mandi. Denah rumah 3 kamar minimalis adalah pilihan yang cocok bagi mereka yang akan membangun rumah. Desain rumah kamar 3 kamar mandi 2 seperti judul yang sudah kalian baca diatas tentang desain rumah kamar 3 kamar mandi 2.

Kalau model minimalis ukuran tanah 1010. Jarak rumah sekitar 7 meter dari sungai. Denah rumah 7x12 meter lantai 1 memiliki 3 kamar tidur 2 kamar mandidapurruang tamuruang keluarga teras depan yang cukup luasdengan cat ezterior warna hijau dan kuning desain rumah 7x12 denah.

Khusus untuk anak dan. Denah rumah type 50 dengan 2 kamar tidur. Rumah dengan 3 kamar tidur mempunyai pilihan pelengkap.

Kamar mandi anak berada di luar. Kamar tidur 3 mushola toilet 2 ruang tamu ruang keluarga kamar laundry 1 dapur meja makan. Letak kamar mandi bisa menyatu di dalam ruang kamar atau terpisah.

Luas bangunan 50 meter cukup untuk dibuat 2 kamar tidur. Contoh pertama kita akan membahas denah rumah type 50 luas bangunan 50 meter persegi. Terlebih lagi bagi mereka yang memiliki jumlah anggota keluarga lebih dari 3 orang maka pilihan denah inilah yang tepat saat mendesain rumah.

Belakang rumah sungai besar. Desain rumah kamar 3 kamar mandi 2. Anda bisa menambahkan ruang laundry secara terpisah dari kamar mandi.

Terima kasih banyak sebelumnya. Berikut adalah contoh desain denah rumah 2 lantai ukuran 610 meter dengan jumlah kamar tidur 3 sampai 4. Denah rumah 3 kamar tidur 1 lantai di lahan terbatas.

Lantai 2 kamar 2 dan kamar mandi 1.

Pin Oleh Windy Silvia Di Rumah Denah Rumah Rumah

Desain Rumah Minimalis 3 Kamar Tidur 1 Lantai Desain Rumah

35 Gambar Denah Rumah Minimalis 3 Kamar Terbaik 2019

Contoh Denah Rumah Minimalis 3 Kamar Tidur Yang Apik

Tren Denah Rumah Minimalis 3 Kamar Tidur 2 Kamar Mandi

Inspirasi Gambar Denah Rumah 3 Kamar 2 Kamar Mandi Untuk Ide

30 Denah Rumah Minimalis 3 Kamar Tidur Desain 1 Lantai

Denah Rumah Minimalis 3 Kamar Tidur 1 Lantai

Desain Rumah Sederhana 4 Kamar Tidur 2 Lantai Ndik Home

Desain Rumah Minimalis 1 Lantai 3 Kamar Tidur Terbaik

Denah Rumah 3 Kamar Tidur Simple Dan Nyaman Fimell

23 Contoh Denah Rumah Minimalis 2 Kamar Terbaru 2019

64 Desain Rumah Minimalis 3 Kamar Desain Rumah Minimalis

Mau Wujudkan Rumah Impian Contek 5 Denah Rumah 3 Kamar

30 Denah Rumah Minimalis 3 Kamar Tidur Desain 1 Lantai

33 Koleksi Desain Denah Rumah 3 Kamar Tidur Modern Dan

Desain Rumah Dengan 3 Kamar Tidur Seri 1 Kompasiana Com

Denah Rumah Minimalis 1 Lantai 3 Kamar Tidur Architecture

Desain Rumah 3 Kamar 2 Lantai Yang Ideal Untuk Keluarga

Denah Rumah Minimalis 3 Kamar Tidur Rumah Minimalis 2019

20 Desain Denah Rumah Minimalis 3 Kamar Tidur 2019 Terbaru

Denah Rumah 2 Lantai Model 2018 Denah Rumah 1 Lantai 3

Desain Rumah 3 Kamar Tidur Kompasiana Com

Denah Rumah Minimalis 3 Kamar Tidur 1 Lantai Gambar

Denah Rumah Sederhana 1 Lantai 3 Kamar Tidur Proyek Untuk

10 Desain Rumah Minimalis 3 Kamar Komplet Dengan Ukurannya

Denah Rumah Minimalis 3 Kamar Tidur Tipe 36 Cari Rumah

Trik Trik Mudah Menentukan Desain Rumah 3 Kamar Seperti

69 Desain Rumah Minimalis 2 Kamar Tidur Desain Rumah

Denah Rumah Minimalis 1 Lantai 3 Kamar Tidur Dan Garasi

Apik Kreasi Desain Denah Rumah 3 Kamar Ini Bisa Kamu Coba

Kumpulan Gambar Denah Rumah Minimalis Tipe 21 36 45 Wajib

17 Gambar Denah Rumah Minimalis Keluarga 3 Kamar Sejasa Com

Posisi Posisi Terbaik Masing Masing Kamar Pada Denah Rumah 3

Buat Pasangan Muda Yang Masih Berjuang 10 Desain Rumah

Desain Rumah Minimalis Type 45 Terbaru Yang Mampu Memberi

70 Denah 3d Rumah Minimalis 3 Kamar Tidur Rumahku Unik

33 Koleksi Desain Denah Rumah 3 Kamar Tidur Modern Dan

Denah Rumah Sederhana 3 Kamar Tidur Terbaik Fimell

Denah Rumah Minimalis 3 Kamar Tidur Type 36 Murah Tapi Tak

21 Contoh Denah Rumah Minimalis 3 Kamar Tidur 1 Dan 2 Lantai

Contoh Desain Rumah Dengan 3 Kamar Tidur Dan 2 Kamar Mandi

35 Gambar Denah Rumah Minimalis 3 Kamar Terbaik 2019

Desain Rumah Minimalis 3 Kamar Tidur 2 Kamar Mandi

30 Denah Rumah Minimalis 3 Kamar Tidur Desain 1 Lantai

Desain Rumah Minimalis 1 Lantai 3 Kamar Tidur Design Rumah

Kumpulan Desain Rumah Minimalis Berbagai Ukuran Om Ibnu

Contoh Denah Rumah Minimalis 1 Lantai 3 Kamar Tidur Yang

Mau Wujudkan Rumah Impian Contek 5 Denah Rumah 3 Kamar

Denah Rumah Sederhana Untuk 1 2 3 4 Kamar Tidur Dan Tipe 36

2 Denah Rumah Minimalis Ukuran 5x15 Meter 3 Kamar Tidur 2

100 Contoh Denah Desain Rumah Dua Kamar Terbaru Design Rumah

17 Desain Rumah Minimalis Modern 3 Kamar Tidur Paling Bagus

23 Model Rumah Minimalis 3 Kamar Inspirasi Rumah Modern Anda

Buat Pasangan Muda Yang Masih Berjuang 10 Desain Rumah

Denah Rumah 3 Kamar Ukuran 6x12 Terbaik Dan Terbaru Baju

Desain Rumah Lebar 3 Meter 3 Lantai 3 Kamar Tidur Partukang

35 Gambar Denah Rumah Minimalis 3 Kamar Terbaik 2019

Rumah Type 150 Ukuran 12 X 14 Meter 3 Kamar Tidur Jasa

Denah Rumah Minimalis Dengan 3 Dan 2 Kamar Lengkap Beserta

2 Denah Rumah Minimalis Ukuran 7x15 Meter 3 Kamar Tidur 1

10 Desain Rumah Minimalis 3 Kamar Komplet Dengan Ukurannya

10 Ide Denah Terbaik Untuk Rumah Ukuran 6x8 Minimalis

Ide Denah Rumah 9x12 3 Kamar Tidur Minimalis

Kumpulan Desain Rumah Minimalis Berbagai Ukuran Om Ibnu

17 Gambar Denah Rumah Minimalis Keluarga 3 Kamar Sejasa Com

Rumah Minimalis Denah Rumah 3 Kamar Tidur 1 Mushola Kenapa

Denah Rumah Minimalis 1 Lantai 3 Kamar Tidur Dan Garasi

Rumah Minimalis 1 Lantai 3 Kamar Tidur Garasi Teras

Contoh Gambar Denah Rumah Minimalis 3 Kamar Modern

Desain Rumah Minimalis Modern 10x9 Dengan 3 Kamar Tidur Gudang Tutorial Android 19

50 Denah Rumah Minimalis 3d 3 Kamar Tidur 2 Lantai Dan 2

Desain Terbaru Denah Rumah Minimalis Sederhana Untuk Kamar

Denah Rumah 2 Lantai Ukuran 6x10 Meter Contoh Desain 2 4

100 Contoh Denah Rumah Minimalis Terisimpel Dan Terkeren

Rumah 2 Lantai Lebar 16 X 13 M Minimalis Jasa Desain Rumah

35 Contoh Gambar Denah Rumah Minimalis 3 Kamar Tidur Terbaru

Desain Rumah 3 Kamar Tidur Seri 2 Kompasiana Com

Denah Rumah Minimalis 3 Kamar Ukuran 6 X 12 Terbaik Indah

Desain Rumah Minimalis 3 Kamar Tidur 1 Lantai Idolnotf

20 Desain Rumah Minimalis Modern Inspirasi Hunian Idaman

Denah Rumah 3 Kamar Tidur 2 Kamar Mandi Type 70

25 Desain Rumah Minimalis 2 Lantai Untuk Keluarga Muda

15 Contoh Gambar Denah Rumah Minimalis Sederhana 1

Lebih Familiar Dengan 5 Denah Rumah Tipe 36 Ini

Desain Rumah Minimalis Modern 3 Kamar Tidur Paling Bagus

21 Desain Unik Rumah Mungil 2 Lantai Buat Keluarga Baru

Petunjuk Singkat Mudah Merancang Denah Rumah Minimalis 1

Buat Pasangan Muda Yang Masih Berjuang 10 Desain Rumah

Contoh Denah Minimalis Modern Terbaru Untuk Keluarga Kecil

100 Contoh Denah Desain Rumah Dua Kamar Terbaru Design Rumah

15 Denah Rumah Sederhana Terbaru Dan Terindah Oliswel

Desain Rumah Minimalis 2 Lantai Di Lahan 6x12 Meter Jasa

Rumah Kamar 3 Inspirasi Gambar Desain Rumah 2 Kamar Tidur

60 Desain Dan Denah Rumah Minimalis Sederhana Modern

Kumpulan Gambar Denah Rumah Minimalis Tipe 21 36 45 Wajib

20 Desain Rumah Minimalis Modern Inspirasi Hunian Idaman

Desain Rumah Minimalis 2 Lantai Di Lahan 6x12m Dengan 3

Inspirasi Denah Rumah Minimalis 1 Kamar Tidur


Advertisement

Iklan Sidebar

Adsense 728x90